——
疾控中心實驗室

效果圖展示:
疾控中心實驗室設計標準
疾控中心按照省比較,市比較,區比較劃分,設計的整體方案也有著很大的區別。以省比較為例:具備的功能實驗室齊全,建設規模大,涉及較高潔凈要求的P3實驗室,需保證其實驗環境的潔凈要求,可通過不同的設計方案而達到。
省比較疾控中心實驗室包括:P3實驗室,分子生物學實驗室,腸道細菌檢測實驗室,食源性病原菌分離鑒定實驗室,呼吸道病毒實驗室,腸道病毒實驗室(含脊灰實驗室),HIV確認實驗室,結核病參比實驗室,地方病實驗室,寄生蟲病實驗室,消毒實驗室,殺蟲實驗室,食品、化妝品、參比實驗室,地方病實驗室,寄生蟲病實驗室,消毒實驗室,殺蟲實驗室,食品、化妝品、毒理室及感染動物房,放射防護檢測實驗室,職業衛生檢測室,化學毒物及毒素檢測實驗室,普通理化實驗室,生化實驗室等。各比較疾控中心開展相關病源微生物工作的實驗室應達到P2實驗室的建設標準。
設計理念:
1、實驗室內對產品的保存環境確認;2、確認潔凈區域、非潔凈區域、污染區和半污染區的功能以及流程布置,保證區域的環境要求;3、深化設計人流、物流、污物流的流程走向,不得造成交叉污染;4、確認防止潛在危害物質釋放的措施;5、確認實驗室的智能預警、關閉、自救和逃生方案。設計理念達到“安全、節能、環保”的要求。
一、疾控中心實驗室總體布局
疾控中心實驗室的建設要符合國家現行的有關生物安全標準。
疾控中心實驗室的空氣具有潔凈度的要求,潔凈等比較按病原性微生物實 驗和污染程度確定,其地理位置應選擇遠離人煙稠密、交通繁忙和空氣、水源、噪聲嚴重污染地區。疾控中心實驗室要按照功能用途劃區布置,將實驗室與各區嚴格 分開,人流、物流路徑分明,有污染排放的區域要設在實驗室的下風向,吸風口設在上風向,實驗室周圍不宜種植飛揚花粉、絨毛和落葉的植物。
疾控中心實驗室不同于其他醫療工程。其區別在于,不僅要求防止環境因素對實驗室的污染和實驗之間的交叉污染,同時還要防止實驗過程中所使用的生物危害和潛在生物危害不致向周圍環境釋放造成污染。
二、疾控中心實驗室設計概念
1.設計理念
(1)確認實驗室內的物理控制對產品、環境和操作人員的保護作用;
(2)確定潔凈區、非潔凈區、污染區和半污染區,以及連帶輔助區的功能和用途;
(3)確定需要封閉或不需要封閉的操作區域;
(4)確定一次屏障、二次屏障的凈化控制方法;
(5)試驗和化驗要合理的分開;
(6)暖通空調、真空、壓縮空氣、供水系統、消毒滅菌要符合GMP要求;
(7)確定不同區域的氣流流向和流速;
(8)確定原材料、設備、產品和生物廢料的流向;
(9)滿足“三廢”排放標準;
(10)確定人員,特別是關鍵實驗操作人員的流向和控制;
(11)確定防止潛在危害物質釋放的措施;
(12)突發性“故障”的緊急關閉和自救方案;
(13)防火、保衛設施;
(14)備用:電源、通訊、控制設施。
2.生物危害因素
生物危害的根源是病原微生物,其危害程度的大小取決于病原性微生物的種屬、形態、抗原、變異等特性以及人體的免疫防御功能。病原性微生物形成生物危害的致病作用,取決于病原性微生物的毒力、侵襲力、數量和侵入部位。
3.生物危害的污染途徑
病原性微生物對實驗工作者的感染,一般都是意外的吸入、吞咽以及創傷、接種或注射等途徑造成的。吞咽和皮膚接觸這兩種侵入方式均可在操作時當場察覺, 能從操作步驟上注意防范。吸入途徑的感染,由于其數量較小,散發于實驗室的環境氣氛中,除非濃度過高,形成可見的類似霉菌孢子的云霧或成品飛揚的粉塵以外,一般往往難以察覺。這些數量較小的病原性微生物隨著氣溶膠進行傳播,據統計實驗過程80%的感染都起因于氣溶膠的危害造成。
氣溶膠是以膠體狀態懸浮在大氣中的液態或固體微粒,其直徑在0.01μm~200μm之間,一般約為1-5μm,是比較適宜引起感染作用的尺寸,肉眼不 能發現。氣溶膠的顆粒大小與其危害程度的關系至關密切,顆粒越細,在空氣中的懸浮時間越長,越容易穿透普通的過濾介質,越容易潛入呼吸系統的深部。
氣溶膠的幾種類型:
(1)滴核
溶液或懸浮液表面在操作時的振動等破壞性應力,則濺出液滴。微小的液滴經過大氣迅速蒸發,體積大為縮小,成為滴核。
如:用移液管連續稀釋,用平皿移種培養,對培養液強力振蕩,進行離心分離操作不慎而產生濺滴和發泡,或在實驗罐培養過程中通氣鼓泡,排氣夾帶液滴,取樣操作的液流噴射,液滴飛濺等。
(2)干粉
在某些常規操作散發的細微顆粒,在熱空氣對流循環下極易傳播。
如:打開菌種砂土管,撥動孢子菌落,粉碎凍干培養物,旋開盛有培養物的瓶蓋,拔出瓶塞等。
(3)浮塵
這類氣溶膠大都是已經被污染的粒屑,絨毛,皮膚屑,短纖維,灰燼,粉塵,塵團等。
4.常見的實驗操作的危險
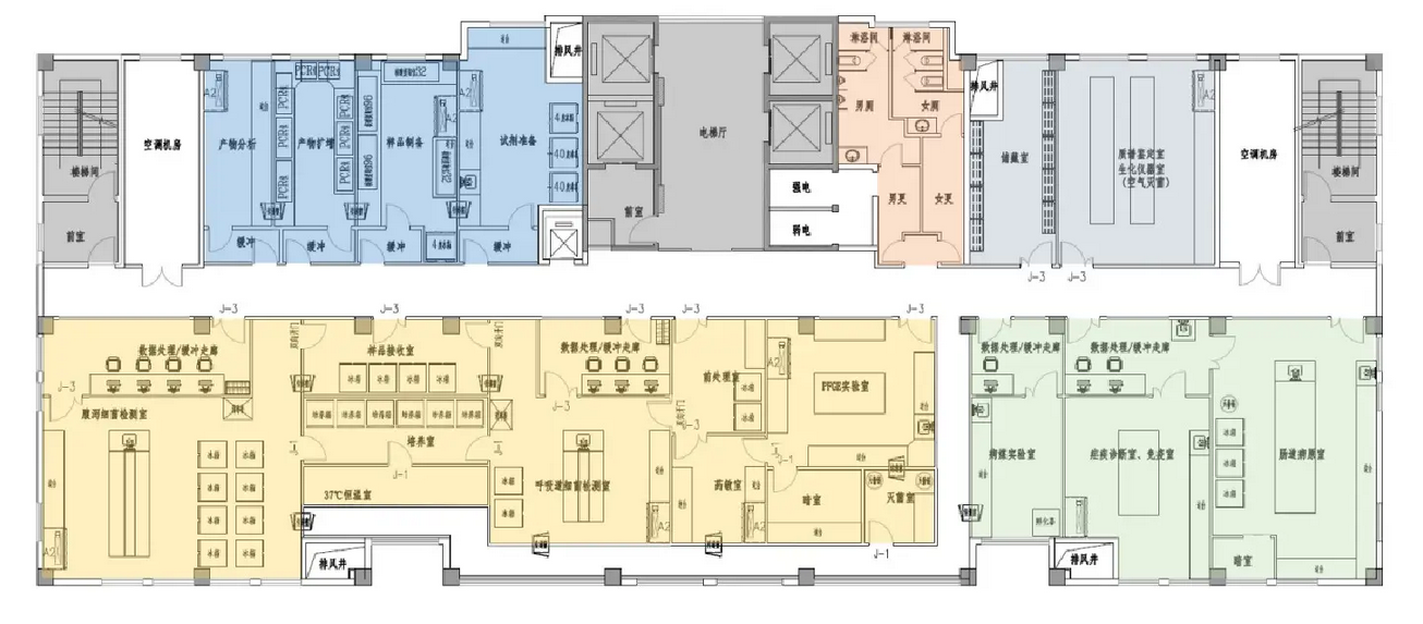
疾控中心實驗室平面布局圖:
三、疾控中心實驗室設計方案
自上所述,疾控中心實驗室的建設是一個分工極細、專業極強、施工技術極高的生物醫療工程。設計中還要注意到:
(1)征求使用者和操作者的意見,確定工藝流程圖;
(2)按照四類病原體的特性和污染途徑,確定控制技術方案和滅菌殺菌方案;
(3)根據氣溶膠特性和實驗操作的危險,制定出潔凈度、氣流流向、流速和壓差梯度參數;
(4)有實驗動物的實驗室自成一區,獨立傳遞,動物尸體要完全焚尸滅菌后,才能傳出;
(5)確定所有的實驗設備、工具、箱柜、臺案數量和尺寸;
(6)確定實驗室的預警、關閉、自救和逃生方案;
1.人流和物流
(1) 人流
初更室—氣閘更衣室—淋浴更衣室—緩沖室—進入實驗區。離開時進入凈身室(房間負壓),脫下身上所有的衣物,衣物放入雙門藥液浸泡柜(或其他方式消毒 柜)內(雙門藥液浸泡柜的門設計成控制式的,不允許同時打開);然后進入淋浴室淋浴;淋浴后進入記錄室,登記記錄自己的工作和身體污染情況,然后拿著身體狀況表進入體檢室,作污染和常規檢查或住室觀察,無問題進入氣閘更衣室換上自己的衣服下班。
(2)物流
物流:設計成單向性的,從專門的庫房(或暫存間)進入緩沖間,再進入實驗室。離開時必須通過雙門熱壓滅菌鍋進入另一個緩沖間(雙門熱壓滅菌柜的門設計成控制式的,不允許同時打開)。任何物料只要進入是實驗區,不能原路返回。
(3)三廢處理
a.廢液
廢液處理的方法是根據廢液的性質確定的處理方法的。一般采取的方法有:化學處理方法、物理處理方法、生物處理方法。
b.廢氣
廢氣處理可采用的方法有:加熱滅菌方法、高效過濾器方法、混合滅菌方法、火焰滅菌方法等。
c.固體廢料
固體廢料的處理方法有:蒸汽滅菌方法、氣體熏蒸方法、液體浸泡方法、輻射滅菌方法、焚燒處理方法等。
2.建筑
主體結構采用土建方法,有抗8比較以上地震能力,在溫度變化和振動情況下不產生裂紋和縫隙,建筑為單層和多層均可。比較好是獨立的多層建筑,按工藝要求分層劃區,便于實驗和管理。
(1)墻板和頂板
室內裝修材料與潔凈廠房的裝修材料不一樣,彩鋼復合板不宜在疾控中心實驗室中使用;原因在于板與板之間的插接縫隙太大,雖然打膠密封,但在四季溫度變化中很快裂出縫隙。
參考方法:
a.裝修的墻板和頂板可采用機加工金屬板方法。四邊制成有密封墊的咬口槽,通過卡口槽密封,房間的陰仰角制成120度角的斜邊;他的特點在于卡口嚴密,螺栓緊固密封,無滲漏,不受溫度影響,不怕撞擊變形,強度大。缺點是裝配速度和機加工速度慢些。
b.裝修可分成兩部分,凈化區采用彩鋼復合板,污染區和半污染區采用一、方法。
c.在土建過程中墻壁預埋下金屬構件,打不透眼孔,攻絲;頂棚與技術夾層采用鋼筋水泥澆注,預留下孔洞,埋下金屬構件;墻壁和頂棚表面涂膠粘貼不銹鋼板,板與板之間采用不銹鋼板壓條,注膠,用螺栓緊固密封;陰仰角采用圓弧R50金屬材料,特殊加工后,粘貼在墻角上。
d.在土建過程中的墻壁和頂棚上預埋下塑料構件,裝修時焊接塑料版,陰仰角用塑料板加工制作,防靜電可鑲嵌金屬條,地面作成防靜電地板或金屬地板。
e.其他材料,可選用表面光潔、平整、無縫隙、不起灰、耐腐蝕、耐沖擊、易清洗的材料。
(2)地面
地面應光滑、平整、不起灰、耐腐蝕、耐沖擊、不積聚靜電、易除塵清洗。
(3)根據病原性微生物的生物危害和致病特點,要合理匹配實驗室房間和凈化設施,每個實驗項目與凈化設施要自成系統,而且操作中的傳遞距離要比較近,比較好是在凈化設施內傳遞,這樣凈化設備可以制造成群組性的,傳遞停留處設有氣閘倉,而且每個實驗階段的凈化設備要獨立房間自成系統,房間之間用氣閘倉連接, 防止環境污染。
不同的實驗項目,采取不同的潔凈技術手段。如放射性元素的實驗室凈化,就區別于其它的實驗室凈化。在制造凈化設備時,在結構上要安裝防射線穿透的材料,根據放射性元素的慣性和擴散原理,采用霧化離心技術,并且根據放射性元素的衰變期來決定排放控制方法和時間。在制造凈化設備時,可以安裝機械手和電視監控系統。
疾控中心實驗室要有高水平的自動化控制系統和安全報警系統,有的房間要設立平衡壓力的值班風機,要害房間要安裝緊急關閉系統和自救逃生系統,確保疾控中心實驗室的安全使用。
總之,我國的病原性微生物實驗室的建設,還在發展階段,我們要向外國學習先進的方法和經驗,少走彎路。并且按照病原性微生物實驗室的規律建設出中國的病原性微生物疾控中心實驗室來。
美泰諾格實驗室技術是專注實驗室投資規劃、設計施工、儀器配置、運營管理、實驗室認證/認可等實驗室整體解決方案的專業服務提供商。
如果您有實驗室設計\建設\認證認可咨詢\培訓需求,請聯系我們!
聲明:文章及圖片均來源于網絡,侵刪!
掃一掃,快速咨詢
